Moderní byt 2+kk v Příbrami na dosah přírody

V klidné rezidenční čtvrti Zdaboř, která je součástí Příbrami, na vás čeká moderní byt 2+kk po rekonstrukci o ploše 44 m2 plný barev a nadstandardního vybavení - má klimatizaci, odhlučněné stěny a podlahy, vlastní plynový kondenzační kotel nebo bodová světla. Patří k němu praktický sklep 4 m2 a přikoupit si můžete i prostornou garáž 17 m2, kde můžete nabíjet svůj elektromobil. A do lesa to máte co by kamenem dohodil.

Lokalita

Byt najdete v ulici Na Planinách ve čtvrti Zdaboř. Ta je oblíbenou jižní částí Příbrami a to hlavně pro svůj klid a blízkost přírody. Do lesa to budete mít jen 100 metrů. Za nejbližším lesem na vás čeká Vokačovský rybník. O kus dál jsou Brdy, na druhou stranu Orlická nebo Slapská přehrada.

Nakupovat můžete v Tescu, vedle kterého je Obi, Planeo, Benu a další obchody. V dochozí vzdálenosti najdete i poštu nebo praktického lékaře. 

V centru Příbrami jste asi za 7 minut. Na kraj Prahy dojedete autem za 40 minut, využít můžete i autobusové spojení. Do budoucna se plánuje obchvat města, který zlepší spojení na dálnici. 

Popis nemovitosti

Moderní a barevný byt 2+kk o ploše 44 m2 najdete v lokalitě, kde se byty moc neprodávají, protože si je původní majitelé drží ve vlastnictví. Poblíž se staví nové bytové domy v rámci Rezidence Zdaboř, které ale stojí cca 120 000 Kč/m2 a to bez garážového stání, které si musíte dokoupit za 400 000 Kč. 

Byt je po kompletní rekonstrukci, hýří barvami a má mnoho nadstandardních prvků – klimatizaci (umí i topit), velký sprchový kout, bodová světla, posuvné dveře nebo hlukově izolované stěny a podlahy. Provozní náklady jsou nízké, celkem asi  4 000 Kč pro 2 osoby. V kuchyni je zánovní plynový kondenzační kotel pouze pro tento byt. Ta je plně vybavena všemi elektrospotřebiči a kvalitním nábytkem. Okna bytu směřují na jihovýchod a je z nich krásný výhled do okolí.

Nachází se ve třetím, nejvyšším, patře dobře udržovaného cihlového domu v energetické třídě C bez výtahu. Nedávno ale byla na schodišti nainstalována pojízdná plošina, takže se v případě potřeby můžete vyvézt nahoru. V přízemí lze využívat prostornou kolárnu. Dům má novou fasádu a jen 9 bytů. 

K bytu patří velký samostatný sklep 4 m2 vhodný pro uložení spousty věcí. A za cenu 499 000 Kč si můžete přikoupit garáž v domě o velikosti 17 m2. Má spoustu výhod – je na dálkové ovládání, má wi-fi připojení a zásuvku 400V, díky které můžete napájet svůj elektromobil. Výška stropu je 2,4 m, v místě vjezdu 2,1 m. Takže sem pohodlně vjedete i velkým SUV, ta mívají výšku kolem 1,8 m. 

Přijďte se sami podívat a rozhlédnout. 

Fotogalerie interiéru

Fotogalerie exteriéru a z dronu

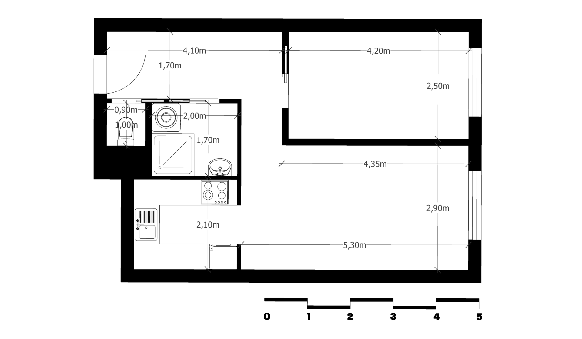
Půdorys

Sdílejte tuto nabídku:

Máte zájem o tuto nemovitost?

KONTAKTUJTE REALITNÍHO MAKLÉŘE

V případě jakýchkoliv dotazů nebo domluvení osobní prohlídky mě prosím kontaktujte.

Ing. ZDENĚK HAŠEK

Tel.: +420 601 381 719

Ing. Zdeněk Hašek
IČO 46410066
Pivovarská 1003, 267 16 Vysoký Újezd

Při poskytování našich služeb nám pomáhají soubory cookie. Využíváním našich služeb s jejich používáním souhlasíte
© ZHREALITY 2021  |   Ochrana osobních údajů  |  Etický kodex  |   web vytvořilo studio: websupreme.cz